PA17/01125 | Submission of details to discharge conditions 3, 4, 5, 6 and 7 in respect of decision notice PA15/01953
Submitted by Angarrack.info ... on Mon, 13/02/2017 - 14:31.
Submission of details to discharge conditions 3, 4, 5, 6 and 7 in respect of decision notice PA15/01953 (allowed at appeal Ref: APP/D0840/W/15/3121461) - 12 Back Lane Angarrack Cornwall
Ref. No: PA17/01125 | Received date: Mon 06 Feb 2017 | Status: Pending Consideration | Case Type: Planning Application
3 - Turning Space
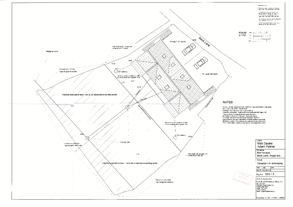
4 - Topography, Landscape
5 - Boundaries
6 - SW Drainage
7 - Method Statement
| Reference | PA17/01125 |
|---|---|
| Alternative Reference | n/a |
| Application Validated | Mon 06 Feb 2017 |
| Address | 12 Back Lane Angarrack Cornwall |
| Proposal | Submission of details to discharge conditions 3, 4, 5, 6 and 7 in respect of decision notice PA15/01953 (allowed at appeal Ref: APP/D0840/W/15/3121461) |
| Status | Awaiting decision |
| Appeal Status | Unknown |
| Appeal Decision |
There is 1 case associated with this application.
There are 2 properties associated with this application.
Applicant - Mr Matthew Davies, 7 Henver Gardens, Realwla TR27 5LN
Case Number :
| PA17/01125 |
| APPLICATION FORM |
| Name or Detail | Received Date | |
![]() |
Application for approval of detail reserved by condition | 06/02/2017 |
| CORRESPONDENCE IN |
| Name or Detail | Received Date | |
![]() |
AT Latham | 06/02/2017 |
| PLAN - PROPOSED MIXED |
| Name or Detail | Received Date | |
![]() |
553/3 Topography and landscaping | 06/02/2017 |
| SUPPORTING INFORMATION |
| Name or Detail | Received Date | |
![]() |
Construction Method Statement | 06/02/2017 |
- Printer-friendly version
- Login or register to post comments
- Permalink
Contributions
- Angarrack Defibrillator Team (25)
- Angarrack Inn (336)
- Angarrack Methodist Chapel (3)
- Carol (15)
- Gail (1)
- GordonG (12)
- Hayle Development Group on Facebook (5)
- Hayle Harbour Authority (4)
- Hayle Town Council (5)
- louise (1)
- Lynne (111)
- Mal (1)
- MattBuckley66 (9)
- Neil (22)
- Neils Garden Care (9)
- Russell (21)
- Secretary - Christmas Lights (141)
- Steve (3)
- webmaster (5122)
Book page
Similar
- PA17/00288 | Application for removal of condition 2 in respect of Decision Notice PA15/01953 - 12 Back Lane Angarrack PA15/01953
- PA16/08443 | Erection of a detached garage | Land And Garage East Of 14 Back Lane Angarrack Cornwall TR27 5JE
- Submission of details to discharge condition 6 in respect of decision notice PA16/01169 - 17A Back Lane Angarrack H | PA16/01169
- Approved with conditions | PA16/01169 | Construction of 2 storey dwelling and attached garage to replace previous approval PA14/
- PA16/01169 | Construction of 2 storey dwelling and attached garage to replace previous approval PA14/12226 | 17A Back Lane Angar
Similar across site
- PA17/01125 | Submission of details to discharge conditions 3, 4, 5, 6 and 7 in respect of decision notice PA15/01953
- PA17/00288 | Application for removal of condition 2 in respect of Decision Notice PA15/01953 - 12 Back Lane Angarrack PA15/01953
- PA16/08443 | Erection of a detached garage | Land And Garage East Of 14 Back Lane Angarrack Cornwall TR27 5JE
- Submission of details to discharge condition 6 in respect of decision notice PA16/01169 - 17A Back Lane Angarrack H | PA16/01169
- Approved with conditions | PA16/01169 | Construction of 2 storey dwelling and attached garage to replace previous approval PA14/





Recent comments
13 weeks 8 hours ago
18 weeks 9 hours ago
18 weeks 9 hours ago
33 weeks 8 hours ago
1 year 3 days ago
1 year 3 days ago
1 year 3 days ago
1 year 3 days ago
1 year 22 weeks ago
1 year 36 weeks ago